ライオンズマンション学芸大学 目黒区中央町[収益物件(マンション)]

ライオンズマンション学芸大学 目黒区中央町[収益物件(マンション)]

収益物件(マンション)[目黒区中央町]

学芸大学駅周辺の賃貸・売買・管理・駐車場の物件検索サイト

  • 03-3710-1151
  • 月曜~土曜(10:00~18:00) 日祝日(10:00~17:00)

会員の方

閉じる

物件詳細

ライオンズマンション学芸大学 目黒区中央町[収益物件(マンション)]

 

ライオンズマンション学芸大学 目黒区中央町[収益物件(マンション)]の物件詳細ページです。

物件種別: 収益物件(マンション)

お問い合わせ番号:102

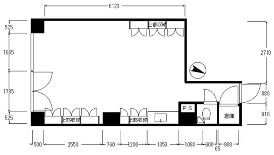
間取り(面積)

1R

( 36.35㎡(登記簿))

価格(円)

3300万円

交通: 東急東横線 学芸大学駅 徒歩8分

専有・建物: 約10.99坪

管理費/修繕積立金:11,320円/月/8,940円/月

築年月:1980年9月

ポイント

◇東急東横線「学芸大学駅」徒歩8分
◇1階路面の区分事務所
◇リフォーム会社の事務所として2024年11月から賃貸中
◇長期修繕計画あり

※組合協力費(外部所有者のみ)月額1,500円/あり。

 

問い合わせ(無料)

TEL: 03-3710-1152

お問い合わせ番号: 102

QRコード

資料請求などはこちら

問い合わせ(無料)

TEL: 03-3710-1152

お問い合わせ番号: 102

セールスポイント

設備等

ガス:都市ガス 水道:公営 下水:公共下水 エレベーター 

近隣施設

コンビ二:セブンイレブン 目黒中央1丁目店  131m

スーパー:まいばすけっと 目黒本町2丁目店  344m

郵便局:目黒郵便局  195m

物件概要

物件名 ライオンズマンション学芸大学
物件所在地 東京都目黒区中央町1丁目10-15
交通機関 東急東横線 学芸大学駅 徒歩8分
敷地の権利形態 所有権
総戸数 50戸
建物構造 鉄筋コンクリート 築年月 1980年9月
面積(専有・建物) 36.35㎡(登記簿)
建物階数 地上5階建  所在階 1階
管理

管理人形態:日勤 管理形態:全部委託

管理会社:株式会社大京アステージ

その他費用 組合協力費(外部所有者のみ):1,500円/月
現況 賃貸中 引渡時期 相談

その他

取引態様 一般媒介 自社管理番号 102
情報更新日 2026年2月26日 次回更新予定日 2026年3月28日
不動産会社コード 5559 物件管理コード 2111609075180000004395
  • ※価格は物件の代金総額を表示しており、消費税が課税される場合は税込と表記の上、税込価格で表示しております。
  • ※間取りの「S」はサービスルーム(納戸)です。
  • ※現況と異なる場合には現況を優先します。
  • ※QRコードは(株)デンソーウェーブの登録商標です。
  • ※利回りとは、当該不動産の1年間の予定賃料収入の不動産取得対価に対する割合であり、
  •    公租公課その他当該物件を維持するために必要な費用の控除前のものです。
  •    また、予定賃料収入が確実に得られることを保証するものではありません。

資料請求などはこちら

問い合わせ(無料)

TEL: 03-3710-1152

お問い合わせ番号: 102

お問い合わせ先:株式会社大丸

所在地 : 東京都目黒区鷹番3丁目21-17
TEL : 03-3710-1152
免許番号 : 東京都知事(15)第15861号
加盟団体 : 全国宅地建物取引業保証協会

この部屋を見学予約

ホームへ戻る